Tu inmobiliaria de referencia en Gran Alacant, Santa Pola. Contamos con más de 40 años de experiencia en el sector.
Inmobiliaria Victoria está reconocida y patentada a nivel nacional y europeo con exclusividad de nombre y servicio.
Moraira
1.795.000€
Detalles
Referencia
67236 [COMPLEX: 24959]
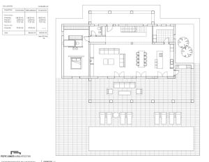
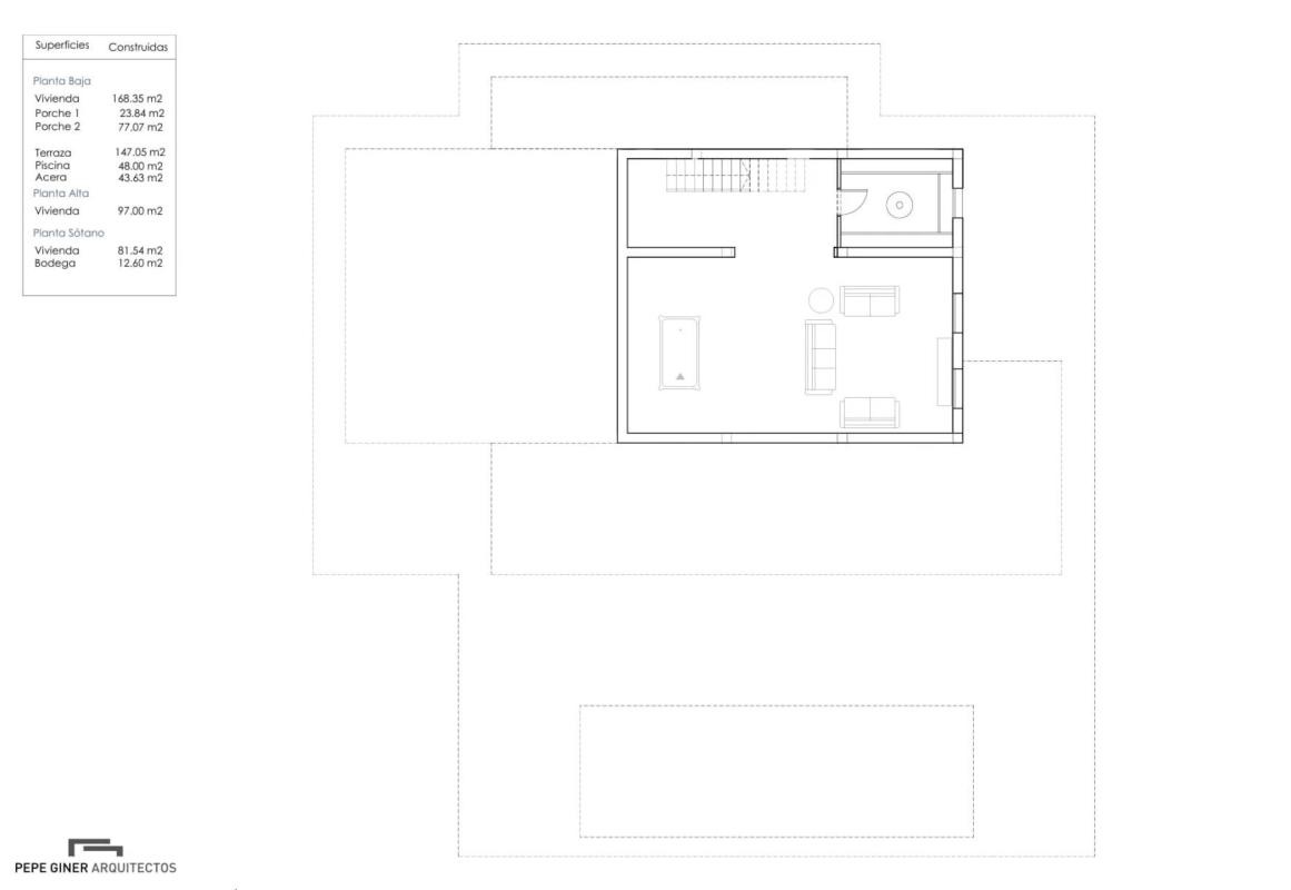
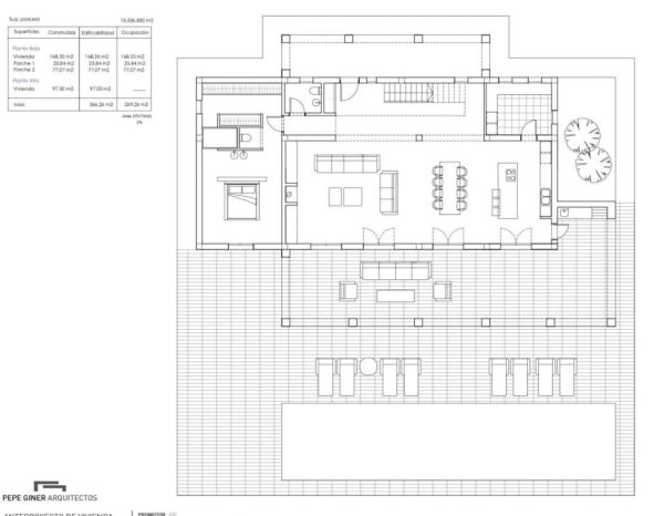
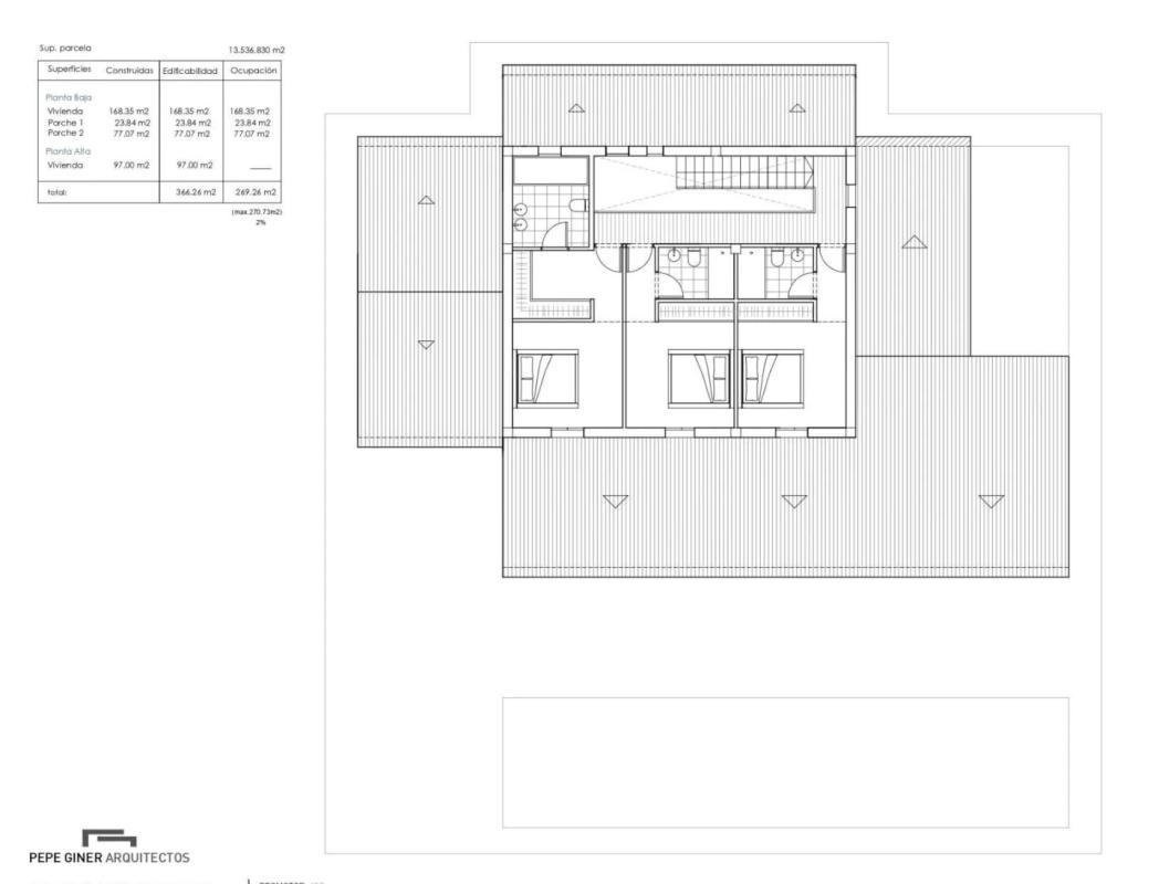
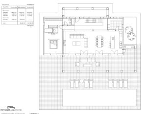
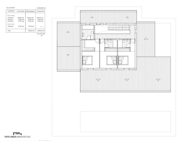
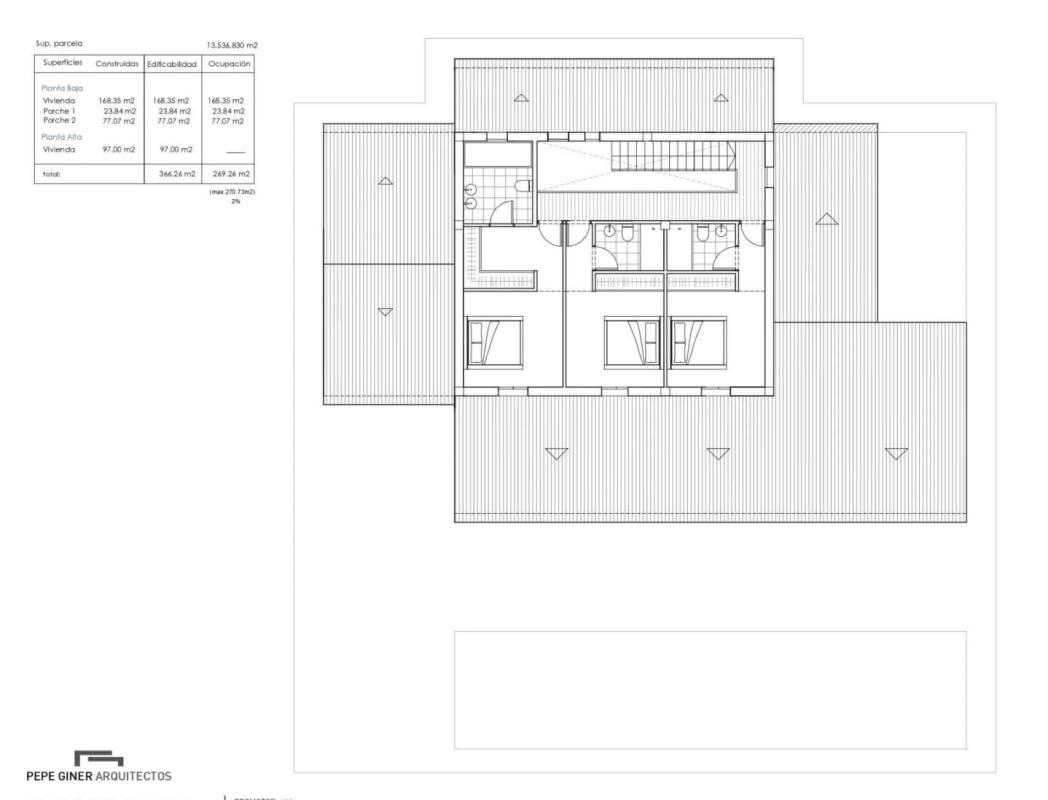
Superficie
346m2
Dorm.
4
Baños
4
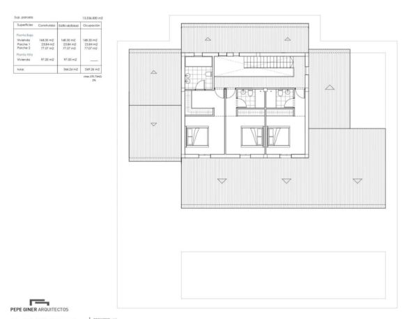
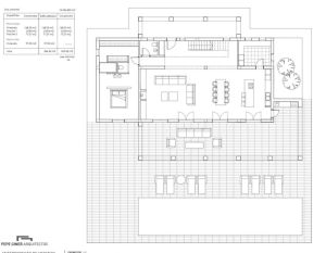
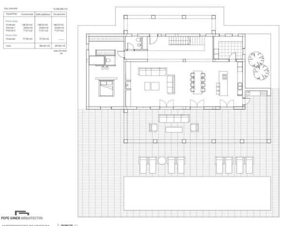
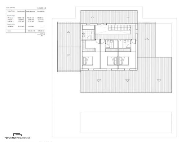
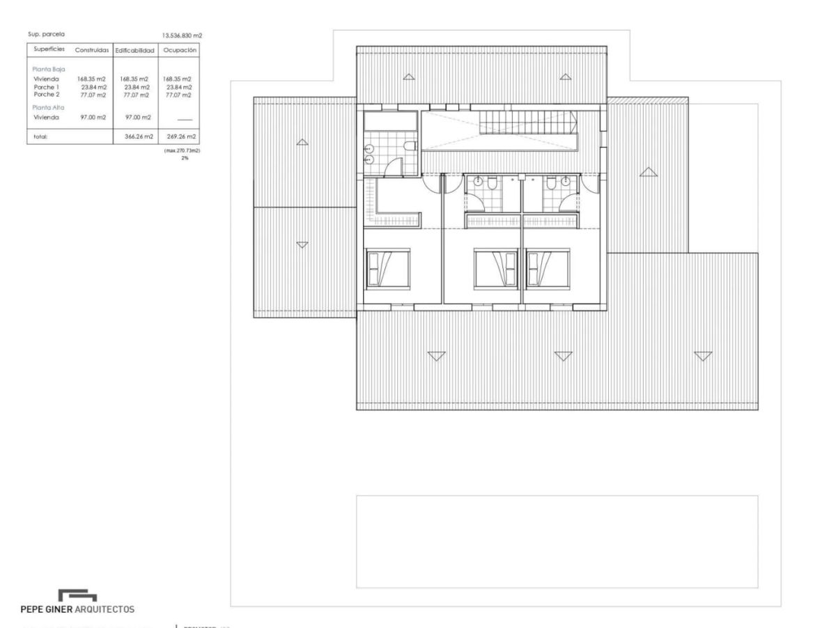
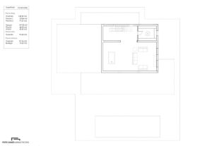
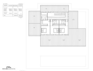
La villa rústica en venta en la zona de Alicante refleja un encantador estilo mediterráneo y está distribuida en tres plantas, conectadas por una escalera interna. Con un diseño de salón-comedor-cocina de planta abierta, la cocina está completamente equipada y presenta una isla central ideal para cocinar. Este exquisito inmueble ofrece el confort de 4 dormitorios y 4 baños completos, además de un aseo de invitados. Completan sus instalaciones un espacioso sótano y un lavadero. La villa está equipada con aire acondicionado por conductos y calefacción central, lo que garantiza la comodidad durante todo el año. La entrada principal es automática e incluye un acceso peatonal independiente con interfono, brindando seguridad y privacidad. Al mismo nivel de la vivienda principal, se encuentra una atractiva piscina rodeada de una amplia terraza, perfecta para disfrutar del clima mediterráneo.
Adquirir una nueva construcción en Alicante ofrece múltiples ventajas, desde las modernas instalaciones hasta la eficiencia energética que proporcionan sus sistemas de climatización. Estas propiedades están diseñadas para maximizar el espacio, brindando áreas funcionales, como la cocina de planta abierta que fomenta la convivencia. Además, las innovaciones tecnológicas en seguridad, como las puertas automáticas e interfonos, añaden un plus de tranquilidad a los residentes.
Vivir en Moraira es disfrutar de un entorno único donde la tranquilidad del mar se combina con la belleza del paisaje. Esta ciudad es conocida por su atmósfera relajada y sus paisajes mediterráneos, lo que invita a disfrutar de actividades al aire libre. Además de la rica oferta gastronómica y cultural, la excelente infraestructura de servicios hace de esta ciudad un lugar perfecto para establecer un hogar con todas las comodidades necesarias.
, , Moraira
